13963 60 AVENUE | Inder Bains Real Estate

13963 60 AVENUE, Surrey

$1,549,000

Property Highlights

Single Family
Price: $1,549,000
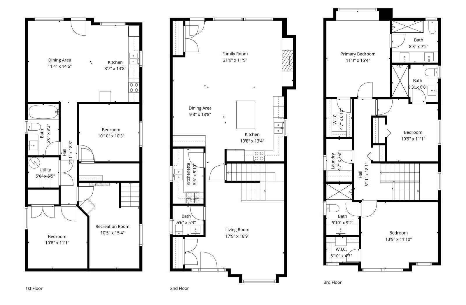
3,409 square feet
6 Bedrooms
6 Bathrooms
Postal Code: V3X2M9
13963 60 AVENUE, Surrey

Description

Welcome to this modern 6 bedroom, 6 bathroom home with a flex room in desirable Sullivan Station. This bright 3-level home features an open-concept layout with high-end finishes and stunning North Shore mountain views from every floor. Walking distance to all levels of school. Chef's kitchen with stainless steel appliances, gas range, and separate spice/prep kitchen. BBQ hookup for outdoor entertaining. Upper level offers two primary bedrooms with walk-in closets and ensuites, plus a third bedroom with ensuite and laundry. Back lane access, ample parking, fenced yard, high quality security cameras and roughed in for central vacuum. 2 SUITES (2 + bachelor) with separate entries -ideal for rental income or multi-generational living. Open house Sat & Sun, Feb 21 & 22, 2-4pm. (id:64528)

Property Location & Nearby Schools

Nearby Schools

    Mortgage Calculator

    Monthly Payment: $0

    *This mortgage payment is an estimate only and may vary based on lender rates, credit qualifications, insurance, and property taxes. Rates and terms are subject to change without notice.*

    Get in Touch

    Have a question or want to book a showing? Fill out the form below — I’ll get back to you shortly.